L'agence
Habitat
Agriculture
Tertiaire
En étude
En chantier
Ressources
Contact
L'agence
Habitat
Agriculture
Tertiaire
En étude
En chantier
Ressources
Contact
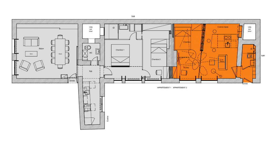
Appartements M
Projets similaires
Maison HN+
2014
Logements 1 rue Paul Pechoux
2022
Appartement D
2012
Maison D
2018
Résidence Ostermeyer Caluire
2021
Appartement L
2012
Maison V
2016
Maisons G
2016
Appartement J
2013
Maison B
2015
↑
Back to Top