L'agence
Habitat
Agriculture
Tertiaire
En étude
En chantier
Ressources
Contact
L'agence
Habitat
Agriculture
Tertiaire
En étude
En chantier
Ressources
Contact
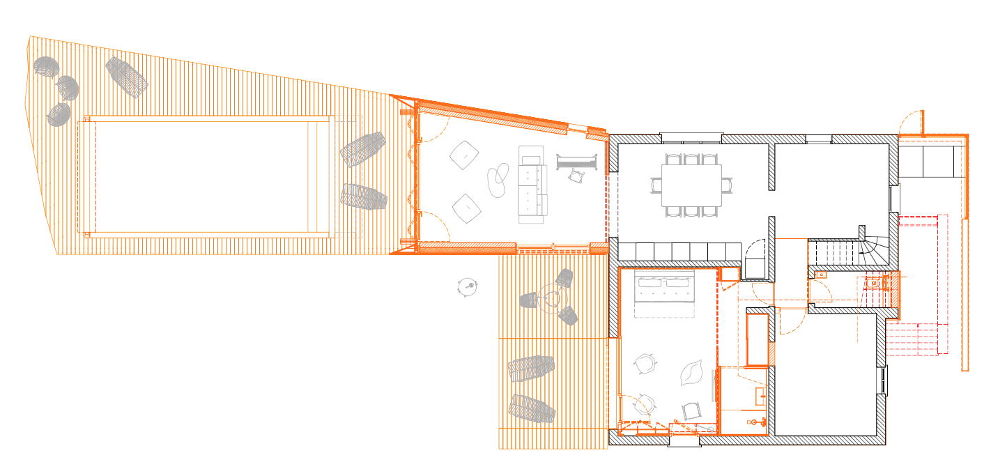
Maison V
Projets similaires
Résidence Ostermeyer Caluire
2021
Maison HN+
2014
Maison D
2018
Immeuble 22 rue Sergent Blandan
2022
Logements 1 rue Paul Pechoux
2022
Maison JFB
2013
Appartement J
2013
Maisons G
2016
Maison F
2018
Maison B
2015
↑
Back to Top